Modernes Zuhause mit Zukunft - Komfortwohnung mit Tiefgaragenstellplatz


Meine Notiz

Eckdaten

Art
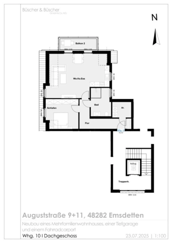
Dachgeschosswohnung
Kaufpreis
358.600,00 EUR
Zimmer
2 Zimmer
Anbieter-ID
20723_10

Kosten

Provision
3,00 % inkl. gesetzl. MwSt. vom Käufer
Provision inkl. MwSt.
ja

Detaillierte Informationen

Flächen
Etage
2
Schlafzimmer
1
Badezimmer
1
Anzahl Balkone
1
Zustand
Objektzustand
PLANS
Parkmöglichkeiten
Tiefgarage Anzahl
1

Ausstattungsmerkmale

Heizung
Fußbodenheizung
Fahrstuhl
Personenfahrstuhl
Bauweise
Massivhaus
Dachform
Satteldach
Ausstattungs-Kategorie
Gehoben

Energieausweis

Wesentlicher Energieträger
LUFTWP
Baujahr
2026

Beschreibung

Entdecken Sie das exklusive Neubauvorhaben im Herzen von Emsdetten ein durchdachtes und nachhaltiges Konzept, das modernen Wohnkomfort in zentraler Lage bietet. Nur wenige Minuten vom Stadtzentrum entfernt, finden Sie hier 12 energieeffiziente Eigentumswohnungen im fortschrittlichen KfW EH 40 NH-Standard mit QNG Zertifikat. Diese wurden mit Blick auf Ihre individuellen Bedürfnisse und zukünftige Anforderungen entworfen.

In der Umgebung befinden sich zahlreiche Annehmlichkeiten des täglichen Lebens, wie Supermärkte, Arztpraxen und Apotheken. Die Innenstadt ist fußläufig erreichbar und erhöht zusätzlich den Wohn- und Freizeitwert dieses Projekt ... Weitere Informationen zu dieser Immobilie erhalten Sie über das Kopieren der nachfolgenden Adresse unserer Webseite: www.volksbank-immobilien.info/immobilienangebote/?sort=rank&cid=20723_10

Ausstattung

  • genießen Sie die Vorteile einer optimalen Infrastruktur und Nahversorgung
  • Dank der hervorragenden Anbindung erreichen Sie die Innenstadt in kürzester Zeit
  • unser Wohnprojekt zeichnet sich durch einen hochwertigen Baustil aus, der sowohl ästhetische Ansprüche als auch Langlebigkeit erfüllt
  • ein moderner Personenaufzug bietet Ihnen Komfort auf jedem Stockwerk, während das barrierefreie Wohnkonzept dafür sorgt, dass alle Bereiche leicht zugänglich sind.
  • das Gebäude entspricht dem KfW-Effizienzhaus-40-NH-Standard mit QNG Zertifikat und bietet somit höchste Energieeffizienz.
  • eine umweltfreundliche Luft-Wärmepumpe und eine energiesparende Fußbodenheizung sorgen für ein angenehmes Raumklima
  • die installierte Photovoltaik-Anlage reduziert Ihren Energieverbrauch weiter
  • innerhalb der Wohnungen finden Sie hochwertige Fliesen sowie Kork- oder Vinyl-Designböden, die Eleganz und Funktionalität vereinen
  • elektrische Rollläden bieten zusätzlichen Komfort und Schutz
  • zu jeder Einheit gehört entweder eine Terrasse, eine Loggia oder ein Balkon, die zum Entspannen im Freien einladen
  • zusätzlichen Stauraum bieten Ihnen separate Kellerräume
  • für Ihr Fahrzeug stehen PKW-Tiefgaragenstellplätze zur Verfügung (jeweils ein TG-Stellplatz ist mit 25.000 € im Kaufpreis enthalten)
  • zusätzlicher Fahrradabstellraum im Garten
  • der Müllraum befindet sich bequem an der Straße, um Ihnen den Alltag zu erleichtern

Sonstiges

Die Immobilienangebote verstehen sich freibleibend und unverbindlich. Zwischenverkauf /Zwischenvermietung ausdrücklich vorbehalten. Die Objektbeschreibungen wurde aufgrund der Angaben der Verkäufer/Vermieter erstellt. Für die Richtigkeit wird keine Haftung übernommen. Mit dem Eigentümer wurde vereinbart, dass Besichtigungen nur gemeinsam mit uns nach vorheriger Absprache durchgeführt werden.

WICHTIGER Hinweis! Die von Kunden angefragten Exposés werden häufiger mal als SPAM gekennzeichnet. Daher bitten wir Sie auch in Ihrem SPAM-Ordner zu schauen, wenn Sie von uns ein Exposé erwarten. Vielen Dank für Ihr Verständnis.

** WIR SUCHEN HÄUSER UND WOHNUNGEN FÜR VORGEMERKTE KUNDEN MIT VORHANDENER FINANZIERUNGSBESTÄTIGUNG **

Lage

Emsdetten, eine junge aufstrebende Stadt mit hervorragender Infrastruktur, wirtschaftsfreundlichem Klima und höchster Lebensqualität. Die Stadt bietet mit ca. 36.700 Einwohnern einen idealen Ort zum Wohnen, Leben und Arbeiten, zentrumsnah und doch im Grünen. Die Vielzahl an Kindergärten und Kindertagesstätten sowie alle Schulformen mit Grund- oder Halbtagsangeboten machen Emsdetten als Wohnort bei jungen Familien besonders attraktiv. Vorzügliche Bildungs-, Betreuungs-, Kultur- und Freizeitangebote unterstreichen die Attraktivität der Stadt. Hinzu kommt das schöne Waldbad, hier lädt sowohl das Hallen- als auch das Freibad zum Badespaß ein! Neben zwei Wochenmarkttagen mit beliebten Angeboten aus der Region lockt die Innenstadt mit regelmäßigen Veranstaltungen im Bereich Musik, Comedy, Theater und Sport. Abwechslungsreiche Einzelhandelsangebote und eine vielfältige Gastronomie runden das Angebot ab. Der ständige Ausbau des Geh- und Radwegenetzes macht das Fahrrad in Emsdetten zum beliebten Fortbewegungsmittel. Vom Emsdettener Bahnhof in Citylage haben Sie direkten Anschluss nach Münster und Rheine. Den Flughafen FMO erreichen Sie mit dem PKW in ca. 20 min. Münster in ca. 30 Minuten.